
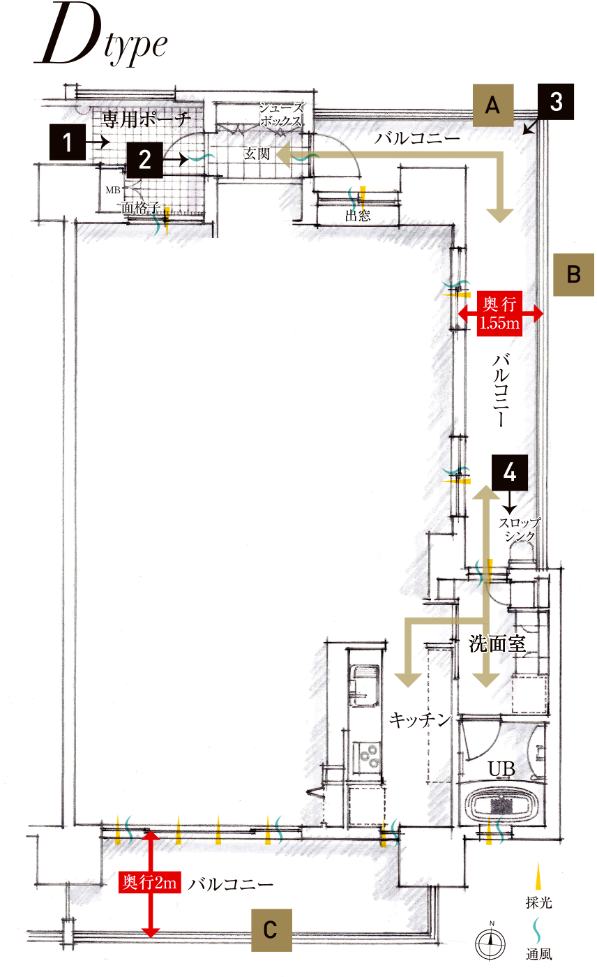
廊下を通ることなく、靴をはいたままバルコニーづたいに洗面室のドアまで行けます。柔軟な発想から生まれた新感覚の設計プラン。暮らすほどにその便利さを実感していただけます。
サイドバルコニーは外廊下のほか、さらに機能的に使用できるよう、奥行を広めの1.55mに設定。物干金物もこちら側にセットすることで、南向きのメインバルコニーはゆったりと快適なアウトドアリビングとして演出することができます。
後楽園を一望することができる、開放感のある南向き。その立地条件を最大限に活かせるよう、バルコニー手摺はガラス仕様としました。開放感をより一層引き立て、採光性も向上。心地よさに加えて、景観の美しさも満喫していただけます。
※眺望や開放感は住戸階数や住戸タイプにより異なります。
■ガラス手摺は網入型板ガラスを採用。型模様をデザインしたガラスは、光を拡散させてソフトな明るさを取り入れるとともに、視野を適度に遮ることができ、プライバシーが守られます。
■ガラスの中に金網(菱型ワイヤー)を挿入することで、万一割れてもガラスの破片が飛散することを防止。ガラス破片による危険性が軽減されます。

※掲載の室内写真は、マンションギャラリーのモデルルームを撮影したもので、一部オプションが含まれています。また、家具・調度品・小物等は販売価格に含まれていません。※ディスプレイの関係上、色調等は実際とは多少異なります。